University Stadium Porto
University Stadium Porto
Back to life
CREA Arquitetos
Das University Stadium der Universität Porto wurde 1953 im grünen Umfeld der Quinta do Campo Alegre eröffnet und gehört seit Jahrzehnten zu den wichtigsten sportlichen und sozialen Treffpunkten der Stadt. Nun hat der traditionsreiche Sportkomplex durch umfassende Renovierung und Erweiterung eine bemerkenswerte Transformation erfahren. Das architektonische Erbe des rationalistisch geprägten Bestands wurde bewahrt, und zugleich entstand eine zukunftsfähige Infrastruktur.
Von CREA Arquitetos.
Sanierung der historischen Tribüne
Im Mittelpunkt des Eingriffs stand die denkmalpflegerisch sensible Rehabilitation der Tribüne, deren streng symmetrische Fassadengestaltung und rhythmisch angeordnete Säulen ein typisches Beispiel der Nachkriegsmoderne darstellen. Der portikusartige Haupteingang, der Besucher durch eine Loggia ins Stadion führt, sowie die in Granit gemeißelten Flachreliefs mit Motiven aus der klassischen Mythologie wurden sorgfältig bewahrt und restauriert.
Gleichzeitig wurde die innere Struktur vollständig überarbeitet: Neue Funktionsräume für Sportler und Besucher entstanden, Zugänge wurden modernisiert und das Tribünendach so umgestaltet, dass die überdachte Fläche deutlich vergrößert wurde – ein spürbarer Gewinn an Komfort.
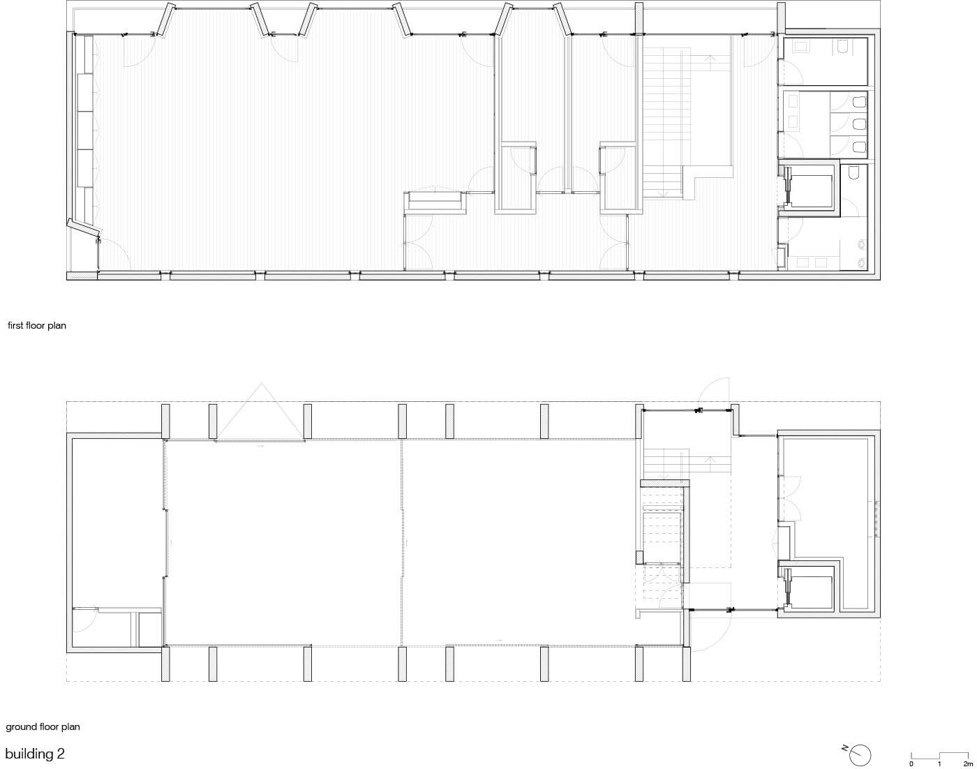
Erweiterung durch zwei neue CDUP-Gebäude
Entlang der Längsachse der Tribüne ergänzen nun zwei Neubauten den Komplex des University Stadium Porto. Sie beherbergen die neuen Hauptsitze des CDUP (Centro de Desporto da Universidade do Porto) und bieten vielseitig nutzbare Räume wie Büros, Besprechungszimmer und Arbeitsbereiche für Studierende und Mitarbeitende.
Während sich die Neubauten in Maßstäblichkeit und Gliederung auf die monumentale Strenge der vorhandenen Tribüne beziehen, interpretieren sie deren kompositorische Regeln durchaus dynamisch, zum Beispiel durch großflächige Öffnungen zu den Sportfeldern hin.
Terrakotta als verbindendes Element
Eine zentrale Rolle spielt die Materialwahl. Für alle neuen Volumen, und auch für Teile des zu sanierenden Bestands, wurde terracottafarben pigmentierter Beton eingesetzt. Dieser warme, erdverbundene Ton belebt die Gebäudehülle und zieht sich bis in die Innenräume des Erdgeschosses.
Das Material verleiht dem Ensemble eine klare Identität, setzt einen subtilen Kontrast zur nüchternen Tribüne und fügt sich harmonisch in den baumbestandenen Kontext ein.
Ein lebendiger Ort für Sport und Gemeinschaft
Mit der Sanierung und Erneuerung öffnet sich das University Stadium wieder als multifunktionaler, offener Campusbereich, der sportliche Aktivitäten, studentische Treffen und Verwaltungsaufgaben vereint. Die historischen Zugänge für Zuschauer über die Treppenanlagen blieben erhalten, während Athleten und Mitarbeitende durch neu gestaltete Eingänge eintreten. So wird der ursprüngliche Charakter respektiert und zugleich eine zeitgemäße Nutzerfreundlichkeit gewährleistet.
Nach einem langen Planungs- und Bauprozess – unterbrochen durch die COVID-19-Pandemie – ist das Stadion nun wieder vollständig in Betrieb und dient als schönes Beispiel dafür, wie moderne Architektur mit historischer Substanz in Einklang gebracht werden kann.
Projektdaten
Planer
Crea Arquitetos
André Camelo
Bruno Soares, Rita Correia, Teresa Osório
Bauherr
Universidade do Porto
Eröffnung
2024
Ihr Eintrag
CDUP
Rua das Estrelas
PT — 4150–762 Porto
Fotos
Fernando Guerra
Text
Johannes Bühlbecker
More Sports Media
Video
Grand Ballroom Tirana
Sporthalle Lodererplatz
Der Blaue Platz
University Stadium Porto
EQT Track
Laje Football Field
Sporthalle Fasanenhofschule
Doppelturnhalle Christoph Merian
Eric-Frenzel-Sporthalle
Temporäre Sporthalle Albstadt
Schwimmen in der Seine
CASA
Turnhalle im Bernapark Stettlen
Ostpark Bochum
Sportgarten am Ernst-Kuzorra-Platz
Spielplatz im Rüstringer Stadtpark
Skakkeringen
Itaka Arena
Freiburger Turnerschaft
Hallenbad Neutraubling
Adelindis Therme
Wunnebad
Ilirija Sport City
Typensporthallen
Unsere Kategorien
Unser Newsletter
Ihre Bühne
Publizieren Sie Ihr Projekt oder Ihr Produkt hier!



























































































































