Die Eric-Frenzel-Sporthalle in Geyer
Es werde Licht!
Code Unique, Lamberts
Eric Frenzel ist der erfolgreichste nordische Kombinierer in der Geschichte des deutschen Wintersports. Seine Herkunft aus der Region, seine sportlichen Erfolge und seine Vorbildfunktion verleihen der Eric-Frenzel-Sporthalle eine emotionale Tiefe.
Die dazu passende Planung stammt von Code Unique, das Licht von Lamberts.
Markant
Mit der Eric-Frenzel-Sporthalle entstand in Geyer (Sachsen) ein markanter Baukörper, der durch Klarheit, Materialbewusstsein und funktionale Präzision überzeugt. Besonders prägend ist die transluzente Fassade aus Profilbauglas, die dem Gebäude Leichtigkeit, Ausstrahlung und Identität verleiht.
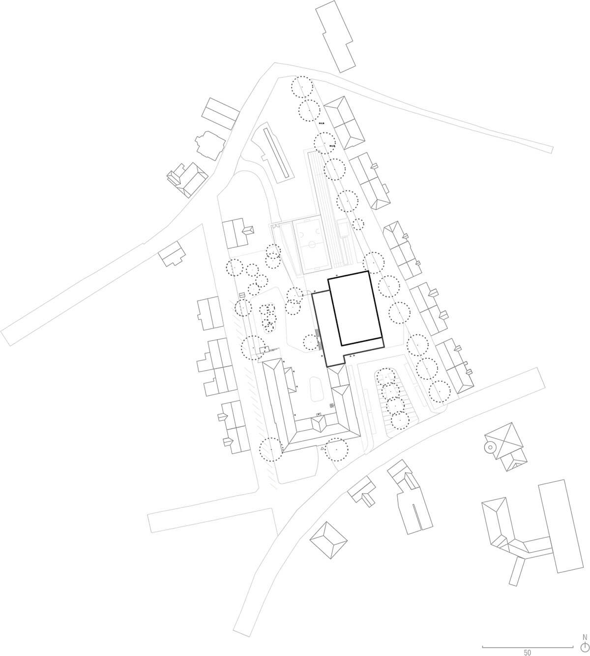
Mit dem Neubau der Zweifeld-Sporthalle auf dem Gelände des ehemaligen Bahnhofs wird der bestehende Grundschulstandort funktional und gestalterisch erweitert. Der Neubau ergänzt den östlichen Flügel des U‑förmigen Bestands und rahmt gemeinsam mit diesem einen introvertierten Schulhof, der als neue Mitte des Ensembles fungiert. Die Halle steht nicht nur den Schülerinnen und Schülern, sondern auch regionalen Sportvereinen und externen Nutzergruppen offen und leistet damit einen wichtigen Beitrag zur Integration des Bildungsstandorts in den städtischen Kontext.
Klar
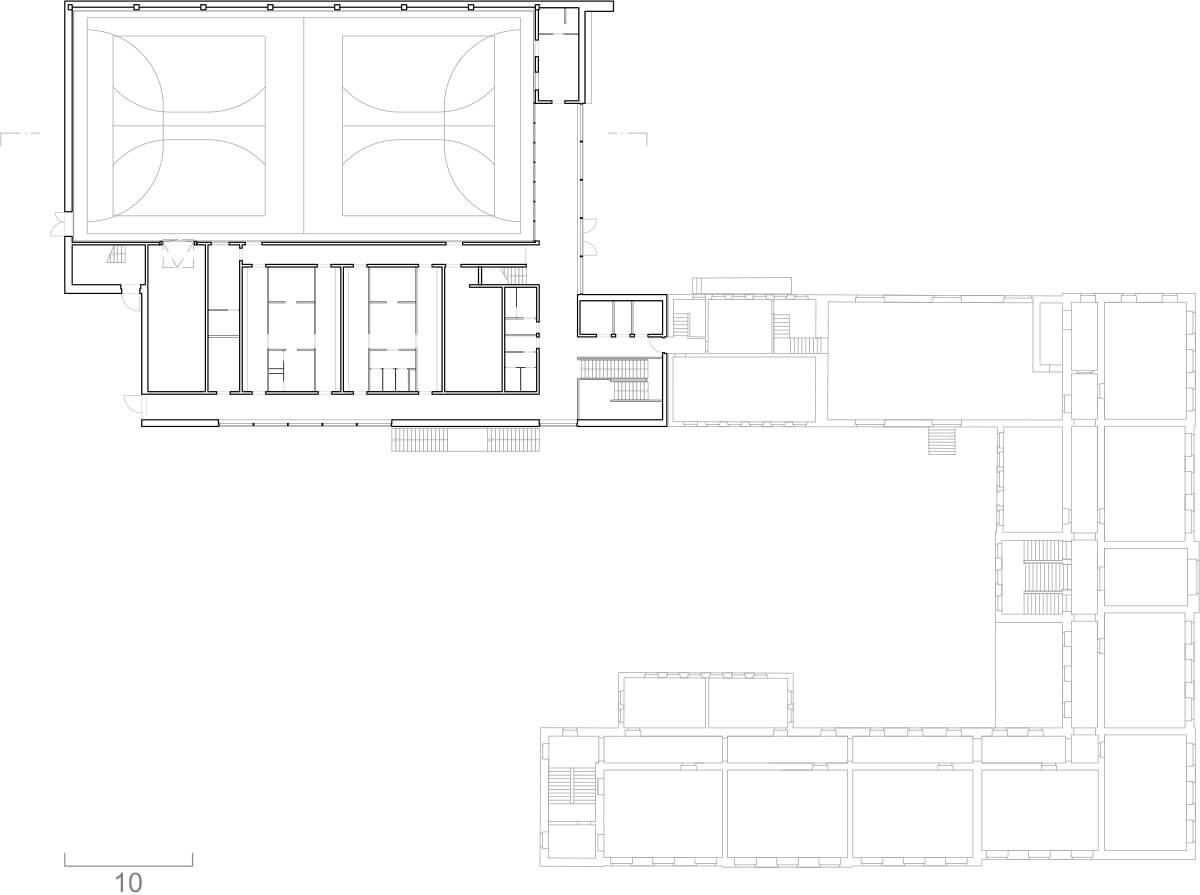
Die innere Organisation ist klar, kompakt und funktional. Über einen zweigeschossigen Baukörper ist die neue Sporthalle unmittelbar an das Schulgebäude angeschlossen. Zentrales Element ist das offene, lichtdurchflutete Foyer, das als Verteilerzone fungiert und den Übergang zwischen Schule, Halle und Zuschauerbereich vermittelt. Von hier aus sind die Tribüne mit 40 Sitzplätzen, die getrennten Zugänge für Turnschuh- und Stiefelbereich sowie die Halle selbst direkt erreichbar.
Eine teilverglaste Wand gibt dem Raum eine offene, kommunikative Atmosphäre. Entlang der Hallenlängsseite sind Umkleiden, Sanitär- und Geräteräume kompakt angeordnet – kurze Wege und klare Abläufe bedeuten leichte Orientierung und einfache Nutzbarkeit.
Hell
Die großflächige Verglasung bringt diffuses Tageslicht ins Halleninnere und sorgt für eine helle, gleichmäßige Raumatmosphäre. In den Abendstunden verwandelt sich die Halle in eine leuchtende Skulptur im Stadtraum – ein architektonisches Signal, das Sport, Gemeinschaft und Offenheit sichtbar macht. Das Glas erfüllt nicht nur gestalterische, sondern auch funktionale Anforderungen: Wärmeschutz, Schallschutz und Wartungsarmut sind integraler Bestandteil des Konzepts. In Kombination mit Putz- und Sichtbetonflächen entsteht ein spannungsvolles Zusammenspiel aus Transparenz, Robustheit und Struktur.
Langlebig
Die Konstruktion folgt dem Prinzip der Effizienz und Materialgerechtigkeit. Stahlbetonstützen und weit gespannte Brettschichtholzbinder bilden die Tragstruktur und ermöglichen eine stützenfreie Spielfläche. Das Dach besteht aus gelochten Trapezprofilblechen, die zugleich zur akustischen Optimierung des Innenraums beitragen.
Die umlaufende Profilglasfassade gewährleistet eine blendfreie Tageslichtversorgung und unterstreicht die energetische Qualität des Konzepts. Mit ihrem optimierten A/V‑Verhältnis ist die Halle kompakt, ressourcenschonend und langlebig konstruiert – ein in vielerlei Hinsicht zeitgemäßes Beispiel nachhaltiger Sportarchitektur.
Projektdaten
Planer
CODE UNIQUE Architekten GmbH
Bauherr
Stadtverwaltung Geyer
Glas
Glasfabrik Lamberts GmbH & Co. KG
Egerstraße 197
D — 95632 Wunsiedel
Adresse
Eric-Frenzel-Sporthalle
Ehrenfriedersdorfer Str. 11a
D — 09468 Geyer
Eröffnung
2023
Fotos
Felix Meyer
Text
Johannes Bühlbecker
More Sports Media
University Stadium Porto
EQT Track
Laje Football Field
Doppelturnhalle Christoph Merian
Eric-Frenzel-Sporthalle
Temporäre Sporthalle Albstadt
Schwimmen in der Seine
CASA
Turnhalle im Bernapark Stettlen
Ostpark Bochum
Sportgarten am Ernst-Kuzorra-Platz
Spielplatz im Rüstringer Stadtpark
Skakkeringen
Itaka Arena
Freiburger Turnerschaft
Hallenbad Neutraubling
Adelindis Therme
Wunnebad
Ilirija Sport City
Typensporthallen
Holy Water
Umkleidegebäude Daillens
Club Tamboré Jundiaí
Sporthalle Ostfildern
Unsere Kategorien
Unser Newsletter
Ihre Bühne
Publizieren Sie Ihr Projekt oder Ihr Produkt hier!

























