Gemeindehalle Kirchheim
Die Gemeindehalle Kirchheim am Neckar
Rostlaube
Es gibt sie in nahezu jeder Kommune: Stadt- und Gemeindehallen als gebaute Versprechen für Gemeinschaft. Doch viele dieser Gebäude aus den 1960er- und 70er-Jahren sind heute funktional überholt. Die Gemeindehalle Kirchheim am Neckar zeigt sich, wie aus genau so einem Bestand ein zeitgemäßer Ort der Begegnung werden kann – ohne seine Geschichte zu verlieren.
Zwischen Weinberg und Wandel: Kulisse als Konzept
Die Halle liegt am Rand von Kirchheim am Neckar, eingebettet in eine Landschaft, die von Weinbergen geprägt ist. Diese Umgebung wird nicht nur Kulisse, sondern Teil des architektonischen Konzepts.
Mit der Entscheidung für eine Fassade aus Cortenstahl reagiert das Gebäude direkt auf seine Umgebung: Das Material verändert seine Farbe und Beschaffenheit im Laufe der Zeit – ähnlich wie die Reben im Verlauf eines Jahres.
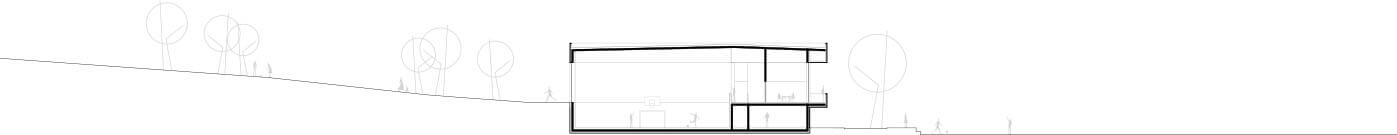
Der Entwurf folgt einer klaren Strategie: erhalten, wo möglich und neu denken, wo nötig. Der linke Gebäudeteil konnte saniert werden, während der rechte Teil abgebrochen und als Erweiterung neu interpretiert wurde.
Zentrales Element bleibt der verbindende Zwischenbau. Er fungiert als räumliches und funktionales Gelenk und ist gleichzeitig ein atmosphärischer Höhepunkt. Mit Cortenstahl ausgekleidet und durch Oberlichter inszeniert, entsteht ein Spiel aus Licht und Schatten, das sich über den Tag hinweg verändert.
Der Entwurf stammt von asp Architekten.


Gemeindehalle
Die neue Gemeindehalle Kirchheim ist als „Haus für alle“ gedacht – und genau so organisiert. Das Zentrum bildet dabei die Gemeindehalle selbst. Mit großer Bühne, Platz für bis zu 800 Personen und einer vollflächigen Glasfassade, die den Blick auf den Vorplatz freigibt, ist hier ein zeitgemäßer Raum für Veranstaltungen und Feierlichkeiten der Gemeinde und ihrer Vereine entstanden.
Werktags steht die Gemeindehalle Schulen und Vereinen zur Verfügung. Am Wochenende finden hier Turniere, Konzerte oder andere Veranstaltungen statt.
Sport
Unmittelbar darunter wurde das „Bädle“ saniert: ein Lehrschwimmbecken, das vor allem von Schulklassen genutzt wird. Um auch den Sportvereinen und Schulklassen mehr Raum bieten zu können, wurde im Untergeschoss zusätzlich eine Sporthalle mit Umkleidekabinen integriert.
Die Sporthalle wurde mit einem modernen Multifunktionsgerät zum Klettern ausgestattet und erhielt neben einem neuen Boden auch eine Holzdecke, die dem Raum eine natürlich warme Atmosphäre gibt.
Angeschlossen an die Gemeindehalle ist eine altersgemischte Kindertageseinrichtung für 60 Kinder ab zwei Jahren.
Vielfalt
Die funktionale Vielfalt spiegelt sich auch in der Gestaltung wider. Unterschiedliche Fassadenöffnungen geben Hinweise auf die dahinterliegenden Nutzungen: kleinteilig für die Kita, großzügig für Sport und Veranstaltung.
Um die unterschiedlichen Funktionen klar voneinander zu trennen und gleichzeitig eine Verbindung zu schaffen, wurden die Kubatur und der für das Gebäude prägende Zwischenbau erhalten – hier wurden auch der Haupt- und Nebeneingang untergebracht.
Verbindung
Beide Eingänge sind vollverglast und machen dadurch die räumliche Nähe zu den Weinbergen schier greifbar. Beim Betreten der Halle entsteht unweigerlich das Gefühl, man laufe direkt auf die Weinberge zu.
Im Inneren sorgen robuste und zugleich warme Materialien, vor allem der Cortenstahl, für Orientierung und Atmosphäre. Der Stahl kleidet den Zwischenbau und verstärkt die Verbindung von innen und außen.
Ausgezeichnet
Seit der Wiedereröffnung im September 2024 wird die Halle nahezu durchgehend genutzt: morgens von der Kita, tagsüber von Schulen und Vereinen, abends und am Wochenende für Veranstaltungen, Wettkämpfe und Konzerte.
Mit der Transformation der Gemeindehalle Kirchheim ist ein multifunktionales Ensemble entstanden, das den Alltag der Gemeinde neu organisiert, und ihn zugleich architektonisch sichtbar macht. Frisch ausgezeichnet im Rahmen von „Beispielhaftes Bauen“ der Architektenkammer Baden-Württemberg steht das Projekt exemplarisch für den intelligenten Umgang mit Bestand – und mit Gemeinschaft.
Projektdaten
(Links sind unterstrichen)
Planer
asp Architekten GmbH
Talstraße 41
D – 70188 Stuttgart
Bauherr
Stadt Kirchheim am Neckar
Eröffnung
2024
Adresse
Gemeindehalle
Brunnenstraße 25
74366 Kirchheim am Neckar
Fotos
Zooey Braun
Römerstrasse 51
D – 70180 Stuttgart
Text
Johannes Bühlbecker
More Sports Media
Pläne
Mehr beispielhafte Bauten für Sport und Freizeit
Abonnieren Sie unseren Newsletter.
Wir informieren alle drei Wochen über neue und beispielhafte Projekte und Produkte. Mit Herz und Schwung und Sachverstand.
























































