Freudvolle Porosität
SPOT in Thionville

Ein Sportzentrum wie ein Versprechen: In Thionville verschmilzt der „SPOT“ Vergangenheit und Gegenwart zu einer spektakulären Bühne für Bewegung, Begegnung und große Events – mit schwebender Architektur, fließenden Räumen und einer Kletterwand als Landmarke.
Respekt
Mit dem Projekt „SPOT – Site Polyvalent Omnisport de Thionville“ wurde im Nordosten Frankreichs ein in die Jahre gekommenes Ensemble aus den 1960er-Jahren – bestehend aus Theater und kommunaler Sporthalle – grundlegend neu belebt. Der Entwurf von Dominique Coulon & associés transformiert die Anlage in ein zeitgemäßes Sport- und Kulturzentrum, das sowohl internationalen Wettkämpfen als auch vielfältigen Veranstaltungen gerecht wird, ohne dabei den Bezug zur historischen Substanz zu verlieren.
Leitmotiv des Projekts ist der respektvolle Umgang mit dem Bestand. Die prägende Natursteinmauer bleibt als identitätsstiftendes und zwischen den Zeiten vermittelndes Element erhalten. Auch das ursprüngliche Eingangsportal wurde bewahrt und fungiert weiterhin als Orientierungspunkt im Stadtraum. Die neue Fassadengestaltung greift die Architektursprache des benachbarten Theaters auf: Vertikale Öffnungen wechseln sich mit geschlossenen Flächen ab und erzeugen den Eindruck eines gewachsenen, zusammenhängenden Ensembles.
Mehrzweckhalle
Ein markantes Element von SPOT ist die rötlich schimmernde Mehrzweckhalle, die über dem steinernen Sockel auskragt. Ihre rund 46 Meter lange Glasfassade verleiht dem Baukörper eine überraschende Leichtigkeit und lässt ihn nahezu schwebend erscheinen.
Die Einbindung in den Stadtraum erfolgt über gezielt gesetzte Öffnungen und Blickbeziehungen. An der Kreuzung zweier Hauptachsen präsentiert sich ein großzügig verglaster Tanzsaal und macht die Aktivitäten im Inneren sichtbar. Auf der gegenüberliegenden Seite wurde das Gebäude zurückversetzt, um einen bestehenden Libanon-Zedernbaum zu erhalten, der den Raum für Rhythmische Sportgymnastik mit seiner 12 Meter hohen Decke verschattet.
Übergänge
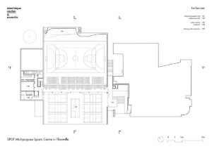
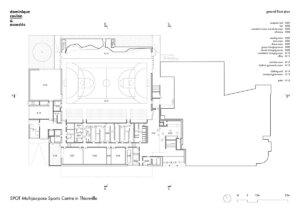
Im Inneren sorgt eine klare, offene Organisation für fließende Übergänge zwischen den Nutzungen. Die Architekten sprechen von „freudvoller Porosität“: Sichtbeziehungen, mehrere Zugänge und eine intuitive Wegeführung verbinden die verschiedenen Bereiche miteinander. Ein zweigeschossiges Foyer bildet das räumliche Zentrum und verknüpft die Ebenen visuell wie funktional. Von hier aus erschließt eine skulpturale Betontreppe die Mehrzweckhalle und die Tribünen, während im Erdgeschoss die Sporthalle und ergänzende Räume liegen.
Die Innenräume im SPOT sind bewusst großzügig und lichtdurchflutet gestaltet. Tragende Strukturen treten optisch in den Hintergrund, sodass zusammenhängende Raumwirkungen entstehen. Farblich gegliederte Zonen in Blau‑, Ocker- und Weißtönen unterstützen die Orientierung und verleihen dem Gebäude eine lebendige Atmosphäre.
Kletterwand
Ein zentrales architektonisches Highlight ist die 42 Meter breite und 15 Meter hohe Kletterwand, die als eigenständiges Raumelement in die Sporthalle integriert ist. Ihre plastische Form erinnert an eine natürliche Felsstruktur. Eine dreieckige Öffnung lässt Tageslicht tief in den Raum eindringen. Gegenüber erhebt sich eine Tribüne mit 750 Plätzen, die bis in die darüberliegende Mehrzweckhalle reicht.
Vielseitigkeit
Die beiden Hauptvolumen – Sporthalle und Mehrzweckhalle – sind als miteinander verzahnte Einheiten konzipiert. Sie können unabhängig voneinander genutzt oder zu einer zusammenhängenden Fläche von rund 2.800 m² verbunden werden. Diese Flexibilität ermöglicht unterschiedlichste Szenarien – von Sportveranstaltungen bis hin zu kulturellen Großevents.
Mit dem SPOT ist eine dynamische, vielseitig nutzbare Infrastruktur entstanden, die historische Identität und zeitgenössische Architektur in Einklang bringt. Das Projekt zeigt, wie durch präzise Eingriffe und räumliche Offenheit ein Ort geschaffen werden kann, der den sozialen und kulturellen Anforderungen einer modernen Stadt gerecht wird.
Projektdaten
(Links sind unterstrichen)
Architekt
Dominique Coulon & Associés
Bauherr
Stadt Thionville
Eröffnung
2024
Adresse
SPOT
Salle Jean Burger
Rue Général Walton Walker
F – 57100 Thionville
Fotos
Eugeni Pons
Text
Johannes Bühlbecker
More Sports Media
Pläne
Mehr beispielhafte Bauten für Sport und Freizeit
Abonnieren Sie unseren Newsletter.
Wir informieren alle drei Wochen über neue und beispielhafte Projekte und Produkte. Mit Herz und Schwung und Sachverstand.





