Die Sporthalle Fasanenhofschule in Stuttgart
Für alle da
Dasch Zürn + Partner
Mit dem Ersatzneubau der Sporthalle Fasanenhofschule hat Stuttgart im Süden der Stadt einen anspruchsvollen und zeitgemäßen Ort des Sports und der Begegnung erhalten, der gleichermaßen für den täglichen Schulsport als auch für den Wettkampfbetrieb ausgelegt ist.
Das liegt am Entwurf von Dasch Zürn + Partner, das liegt aber auch an der Qualität der verwendeten Materialien und der beteiligten Firmen.
Die Lage
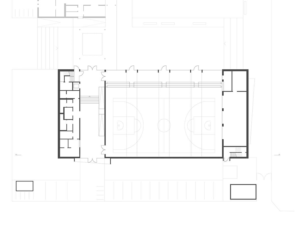
Der Neubau ergänzt das langgestreckte Schulhaus zu einem L‑förmigen Gesamtensemble. Durch die Stellung des kompakten Baukörpers entlang der Straßenflucht entstehen klar definierte und geschützte Außenbereiche, darunter ein überdachter Vorplatz, der Pausenhof mit Außensportbereich sowie die Parkplätze. Ein gemeinsames Vordach verbindet die Halle direkt mit dem Schulgebäude und bildet den Hauptzugang für Schüler und Lehrer.
Die gesamte Anlage schafft durch die großzügige Verglasung zum Pausenhof und Freibereich eine intensive Verknüpfung zwischen innen und außen.
Die Nutzer
Die neue Sporthalle Fasanenhofschule ist sowohl ein Ort für den Sport als auch Raum für die schulische Gemeinschaft. In der Halle finden bis zu 150 Zuschauer Platz, mit dem Foyer zusammen sind noch größere schulische Veranstaltungen möglich. So wird der Baukörper zur sportlichen und kulturellen Mitte des Quartiers.
Die Halle ist also auf eine Doppelnutzung sowohl für den Schul- als auch für den Vereinssport ausgelegt, und das wird durch zwei Haupteingänge, einen vom Schulhof im Osten und einem von den Parkplätzen auf der Westseite, auch sehr sichtbar.
Die eigentliche Hallenebene liegt rund 70 cm unter dem Niveau des Pausenhofes und nimmt damit den vorhandenen Geländeversatz zu den westlich gelegenen Parkplätzen auf. Dieser Höhenunterschied ermöglicht eine gestaffelte Tribünenlösung an der Längsseite des Spielfeldes, die aus zwei Sitzstufenreihen für gut 100 Besucher sowie einem Stehplatzumgang auf Pausenhofniveau besteht.
Die Materialien
Das Erscheinungsbild der Sporthalle wird von Holz, Beton und großzügigen Verglasungen bestimmt. Die geschlossenen Fassadenflächen sind mit einer vorgehängten hinterlüfteten Holz-Fassadenkonstruktion verkleidet, wobei drei unterschiedlich breite, vertikale, vorvergraute Lamellen zum Einsatz kommen. Die Verglasungen wurden als Pfosten-Riegel-Konstruktion mit Dreifachverglasung ausgeführt.
Hinter der Holzfassade verbergen sich das Stahlbetontragwerk und die Funktions- und Nebenräume: Im Erdgeschoss sind dies Geräteräume, Lager und WCs, Umkleiden und Duschen sind im Obergeschoss untergebracht. Ergänzend integriert ist eine Hausmeisterwohnung mit separatem Eingang, die den Baukörper funktional komplettiert.
Die Halle selbst wird von drei Holz-Doppelbindern überspannt, die oberhalb der Hauptdachfläche angeordnet sind. Diese Konstruktion bildet die markanten, von außen ablesbaren Sheds. Die nördlichen Träger sind dabei als Fachwerkträger ausgebildet, sodass zwischen ihren Diagonalen blendfreies Nordlicht ins Innere der Halle fällt.
Das Innere
Im Inneren wird die schlichte Farbgebung durch Materialien bestimmt, die funktional und ästhetisch zugleich sind. Die höher liegenden Wandbereiche sowie die Wände im Foyer bestehen aus Sichtbeton mit eingelegter Bretterschalung. Für den Sportbetrieb sorgen das flächenelastische Sportbodenparkett sowie eine ebenfalls flächenelastische Prallwand in Weißtanne an der Südseite, welche zugleich dem Schallschutz dient. Ergänzend dazu verbindet eine gelb gestrichene Holzwolleplatte an den Decken das Foyer mit den Nebenräumen.
Diese Energie
Alle Dachflächen sind mit Photovoltaik belegt, die Hausmeisterwohnung wird über Solarthermie beheizt. Die Kombination aus langlebigen Materialien, robustem Tragwerk und energetischen Maßnahmen führt zu einem nachhaltigen, zukunftsfähigen Schul- und Sportgebäude.
Die Sporthalle Fasanenhofschule zeigt, wie zeitgemäße Sportarchitektur aussehen kann: architektonisch klar, atmosphärisch warm, flexibel in der Nutzungsflexibel und eng verknüpft mit ihrer schulischen Umgebung.
Halt für alle da.
Projektdaten
Planer
dasch zürn + partner
Böheimstraße 43
D — 70199 Stuttgart
Bauherr
Landeshauptstadt Stuttgart
Referat Jugend und Bildung
Eröffnung
2022
Adresse
Fasenhofschule
Markus-Schleicher-Str. 15
D — 70565 Stuttgart
Fotos
Henrik Schipper Photography
Text
Johannes Bühlbecker
More Sports Media
Grand Ballroom Tirana
Sporthalle Lodererplatz
Der Blaue Platz
University Stadium Porto
EQT Track
Laje Football Field
Sporthalle Fasanenhofschule
Doppelturnhalle Christoph Merian
Eric-Frenzel-Sporthalle
Temporäre Sporthalle Albstadt
Schwimmen in der Seine
CASA
Turnhalle im Bernapark Stettlen
Ostpark Bochum
Sportgarten am Ernst-Kuzorra-Platz
Spielplatz im Rüstringer Stadtpark
Skakkeringen
Itaka Arena
Freiburger Turnerschaft
Hallenbad Neutraubling
Adelindis Therme
Wunnebad
Ilirija Sport City
Typensporthallen
Unsere Kategorien
Unser Newsletter
Ihre Bühne
Publizieren Sie Ihr Projekt oder Ihr Produkt hier!














